This is Aalto. A Professional theme for
architects, construction and interior designers

Call us on +651 464 033 04

531 West Avenue, NY

Mon - Sat 8 AM - 8 PM

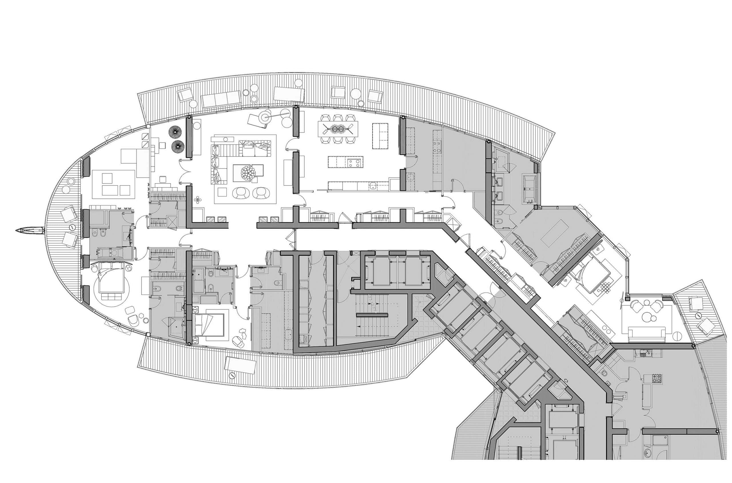
Interiorismo de vivienda particular

 

Particular
2017
Mónaco
Interiorismo y decoración

 

En uno de los rascacielos más exclusivos del principado, éste apartamento se llena de piezas de un lujo sobrio y exquisito y se le confiere a los ambientes un fuerte carácter náutico. Reflejos de cristal, parquets de tonos naturales, terciopelos y lámparas doradas emmarcan el mar azul que se ve a través de los grandes ventanales y generan ambientes cálidos perfectos para relajarse y recibir.