This is Aalto. A Professional theme for
architects, construction and interior designers

Call us on +651 464 033 04

531 West Avenue, NY

Mon - Sat 8 AM - 8 PM

Shanghai Villa

 

Interiorismo vivienda particular
2018
Shanghai, China

 

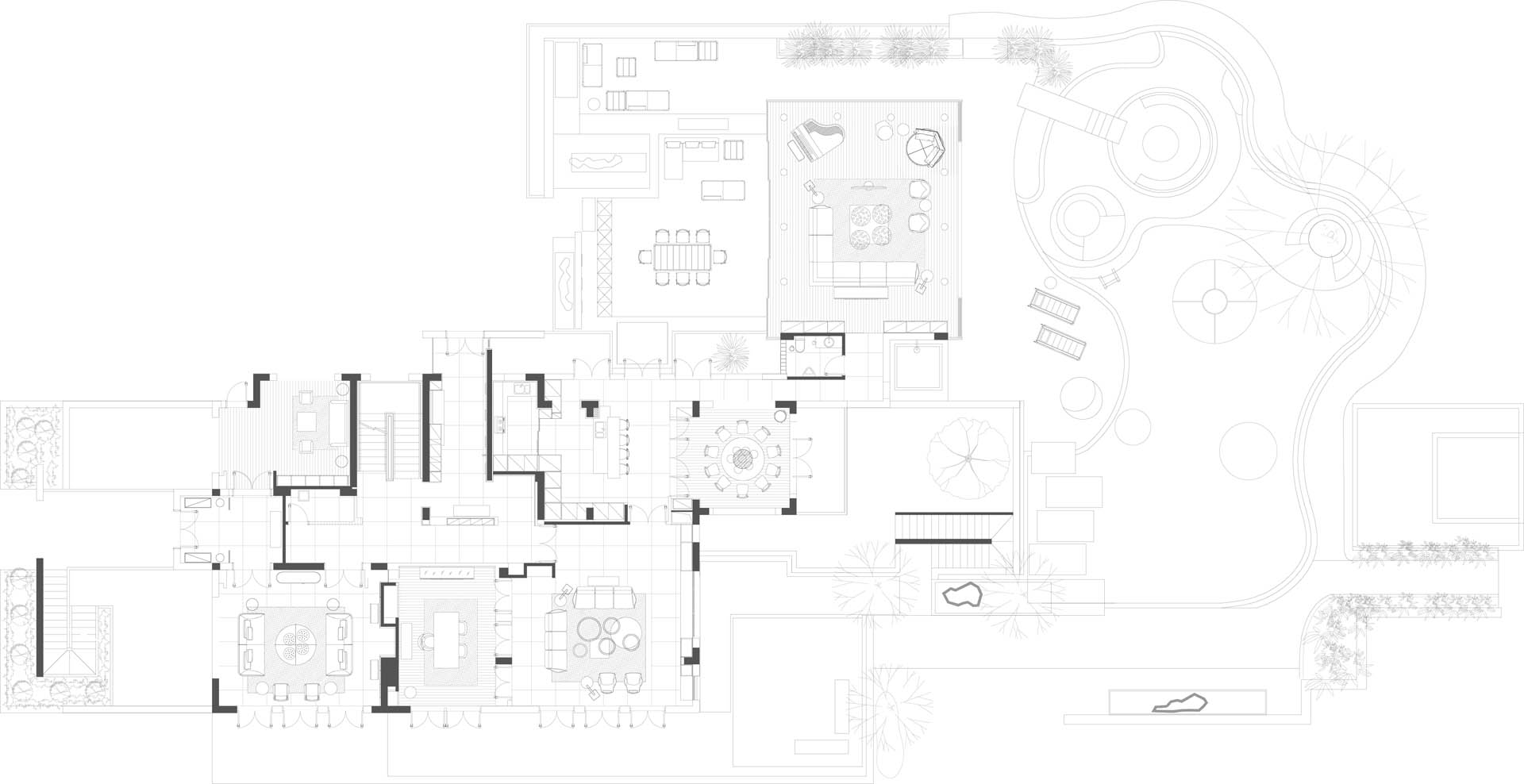
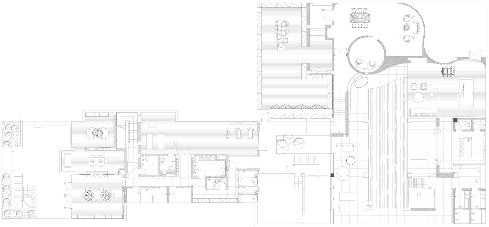
El reto de este proyecto de interiorismo era dar cabida en un mismo espacio a los negocios y a la vida familiar, mirando la tradición oriental desde una óptica contemporánea.

Nuestro equipo de interioristas ha concebido los espacios de esta gran casa con la idea de crear un equilibrio entre el mundo profesional y el ámbito doméstico. Cada uno de los elementos del diseño de interiores han sido escogidos con esta función: desde la bodega a la colección de antigüedades, pasando por la sala del piano, el gran jardín subtropical y el living de recepción al salón familiar. De la misma forma, las habitaciones de cada uno de los miembros de la familia han sido diseñadas a medida en función de sus necesidades.

Una familia y un negocio floreciente. Una sofisticada declaración de intenciones convertida en hogar.

Proyectos de Interiorismo