This is Aalto. A Professional theme for
architects, construction and interior designers

Call us on +651 464 033 04

531 West Avenue, NY

Mon - Sat 8 AM - 8 PM

Lake Villa

vivienda particular
2015
Pekín (China)

 

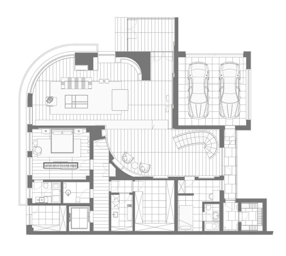
El proyecto de arquitectura, interiorismo y asesoramiento de paisajismo de Lake Villa combina los aspectos de la vida familiar hogareña con las necesidades del mundo laboral. Una casa a diferentes niveles que se relaciona simbióticamente con los desniveles orográficos.

La primera planta de la vivienda está destinada al recibimiento de invitados y el desarrollo de actividades profesionales; la segunda planta está dedicada exclusivamente a la familia; y la tercera, más privada, es lamaster suite del dueño de la casa.

El diseño de interiores está pensado para convertir cada espacio de la nueva vivienda en un lugar único y personalizado. El jardín está planteado para que toda la familia disfrute de actividades de ocio y desconexión. Todo el proyecto gira entorno a los materiales nobles y los acabados elegantes.

Category: