This is Aalto. A Professional theme for
architects, construction and interior designers

Call us on +651 464 033 04

531 West Avenue, NY

Mon - Sat 8 AM - 8 PM

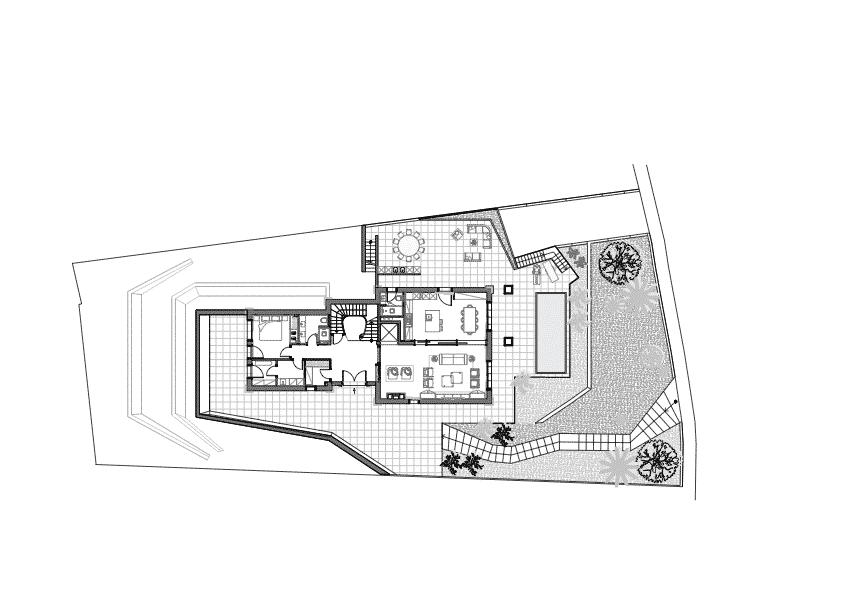
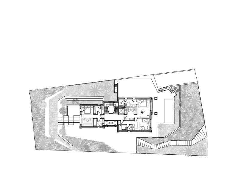
Highview Villa

Vivienda unifamiliar
FINALIZADA
Castelldefels, Spain

Un mirador al mar Mediterráneo. Un volumen blanco clásico y con líneas depuradas. Un nido luminoso rodeado de grandes ventanales y terrazas ajardinadas.

Este proyecto de arquitectura en Barcelona, en una de las zonas más exclusivas del área metropolitana de la capital, es toda una declaración de intenciones de arquitectura contemporánea de alta gama con una estilización modernizada de la villa «palladiana» renacentista. Mediterráneo clásico con vistas al mar.

Category: